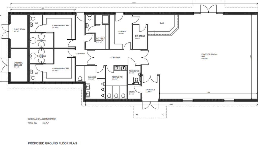
Following our recent post about the new Sports and Social Club, there have been some minor changes to the plans.
These plans will now be going forward for planning permission.
Please have a look – and then tell us how you’d like to use the new building. See our Survey Link below…




Important Survey
We are trying to establish what use residents would like to make of the new Sports and Social Club and would appreciate YOUR views via the linked survey.
The survey will be open from 17th June to 1st July:
Is there any further information regarding the social and sports club?
LikeLike